В ассортименте профильных систем ТМ WDS появилась дверная Z-створка WDS 76 MD (арт. 167) с внутренним открыванием — в рамках стратегии расширения ассортимента в соответствии с актуальными требованиями рынка.
Компания MIROPLAST представляет расширение 76 серии — дверную Z-створку WDS 76 MD (арт. 167) с внутренним открыванием. Продукт уже доступен для заказа и предоставляет партнёрам-производителям светопрозрачных конструкций возможность расширить ассортимент и повысить конкурентоспособность как на внутреннем, так и на внешних рынках.
Фасадные двери с внутренним открыванием — практичное и современное решение, которое является базовым для европейского рынка и всё активнее внедряется в Украине благодаря удобству эксплуатации и повышенной надёжности в долгосрочной перспективе.
Варианты применения
1. Входные фасадные двери с внутренним открыванием


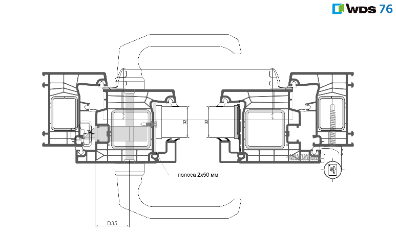
- Для входных дверей рекомендуется использовать сварное армирование 40×40 мм толщиной 2,0 мм, обеспечивающее повышенную жёсткость и устойчивость к изгибу и кручению.
- Армирование с отверстиями под замок, даже минимальными (выполненными лазером), имеет жёсткость в 1,5 раза ниже по сравнению с армированием без отверстий. В связи с этим со стороны замка рекомендуется дополнительно армировать фальц створки полосой 2×50 мм из нержавеющей или оцинкованной стали. Это компенсирует потерю жёсткости и предотвращает возможные прогибы створки под воздействием температурных деформаций.
- Для повышения общей жёсткости конструкции рекомендуется объединять армирование в единый каркас с использованием металлических углов фальца створки (арт. D000210), что повышает сопротивление эксплуатационным и температурным нагрузкам полотна створки.
2. Балконные двери

Ограничения габаритов створок балконных дверей:
Серая зона на схеме определяет расширение допустимых габаритов поворотно-откидных створок балконных дверей WDS 76 MD со створкой арт. 167 по сравнению с оконными створками системы WDS 76.

Более подробная информация — на сайте производителя.