В асортименті профільних систем ТМ WDS зʼявилась дверна Z-стулка WDS 76 MD (арт. 167) з внутрішнім відкриванням у межах стратегії розширення асортименту відповідно до актуальних вимог ринку.
Компанія MIROPLAST презентує розширення 76 серії - дверну Z-стулку WDS 76 MD (арт. 167) з внутрішнім відкриванням. Продукт вже доступний до замовлення і надає можливість нашим партнерам-виробникам СПК розширити свій асортимент та стати ще більше конкурентноспроможними як на внутрішньому так і на зовнішньому ринках.
Фасадні двері внутрішнього відкривання – практичне та сучасне рішення, яке є базовим в Європі та набирає все більшої популярності в Україні, завдяки зручності та кращій надійності впродовж тривалого часу.
Варіанти застосування
1. Вхідні фасадні двері з внутрішнім відкриванням


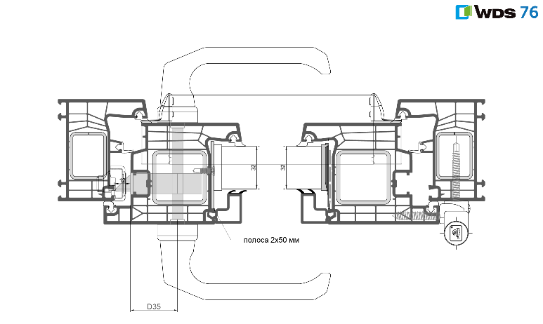
- Для вхідних дверей рекомендовано використовувати зварне армування 40×40 мм товщиною 2,0 мм, яке забезпечує підвищену жорсткість і стійкість до вигину та кручення.
- Армування з отворами під замок, навіть мінімальними (виконаними лазером), має жорсткість у 1,5 раза нижчу, ніж армування без отворів. У зв’язку з цим рекомендовано зі сторони замка додатково армувати фальц стулки смугою 2×50 мм з нержавіючої або оцинкованої сталі. Це компенсує втрату жорсткості та запобігає можливим прогинам стулки під дією температурних деформацій.
- Для підвищення загальної жорсткості конструкції рекомендовано об’єднувати армування в єдиний каркас із використанням металевих кутиків фальца стулки (арт. D000210), що підвищує опір експлуатаційним і температурним навантаженням полотна стулки.
2. Балконні двері

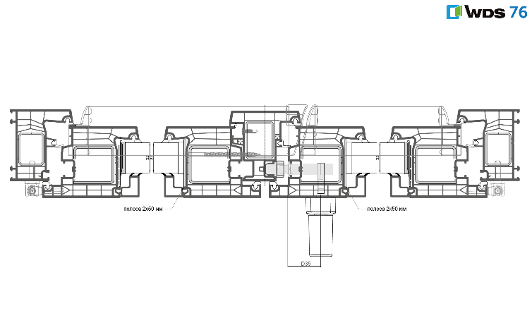
Обмеження габаритів стулок балконних дверей:
Сіра зона на схемі визначає розширення допустимих габаритів поворотно-відкидних стулок балконних дверей WDS 76 MD зі стулкою арт. 167 у порівнянні з віконними стулками системи WDS 76.

Більш докладна інформація на сайті виробника