Завдяки новому рішенню стало можливе поєднання різних конструкційних матеріалів з іншим виглядом ззовні (алюміній) та всередині приміщення (сталь, алюміній або дерево).
Компанія PROCURAL модифікувала рішення базової фасадної системи PF152, розширивши її можливості виконання зовнішнього облицювання на підконструкції, незалежній від алюмінієво-скляної системи. У результаті стало можливим поєднання різних конструкційних матеріалів з іншим виглядом ззовні (алюміній) та всередині приміщення (сталь, алюміній або дерево).
Які характерні особливості нової системи PF152A?
- відмінна герметичність, забезпечена триступеневою системою водовідведення;
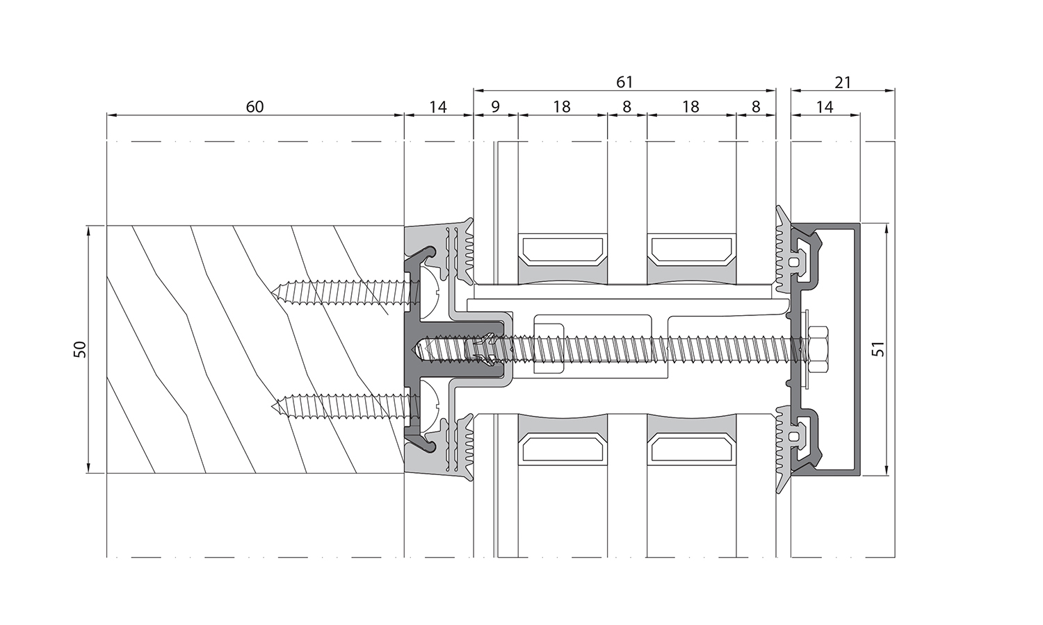
- можливість монтажу на сталевій, алюмінієвій або дерев’яній підконструкції (мінімальна ширина профілів підконструкції – 50 мм);
- монтаж на сталевій підконструкції значно збільшує максимальні габарити конструкції;
- висота фасадної стіни обмежена до 13 м;
- дуже естетичний вигляд, особливо у версії з дерев’яною підконструкцією, коли зсередини видно теплі акценти дерева; із зовнішнього боку – алюмінієві профілі, пофарбовані порошковим методом або анодовані, шириною 51 мм (у стандартній версії).
Технічні параметри:
Алюмінієві профілі
Виготовлені зі сплаву алюмінію EN AW-6060 PN-EN 573-3, стан T66 за PN-EN 515 та відповідають вимогам PN-EN 12020-1
Ущільнювачі
Ущільнювачі з синтетичного каучуку EPDM за стандартом PN-EN 12365-1 та з TPE за DIN 16941R3
Ширина стійок і ригелів
51 мм
Заповнення
Одинарне скло, склопакети або непрозорі панелі, товщина: для фасаду 4–65 мм, для вікон 24–69 мм
Термоізоляція
Uf від 0,93 Вт/м²К, Ucw/Uw = 0,62 Вт/м²К (розраховано для елемента розміром: L 1200 x H 2500 мм, Ug = 0,5 Вт/м²К, двокамерне скло).
Способи обробки поверхні
Порошкове фарбування поліестеровими фарбами, які відповідають вимогам Qualicoat, з можливістю вибору кольорів за палітрою RAL; анодування натуральне та кольорове – відповідність стандарту Qualanod; лакування «під колір» дерева – обробка поверхні відповідає високим антикорозійним вимогам



