Благодаря новому решению стало возможным сочетание различных конструкционных материалов с разным внешним видом: снаружи (алюминий) и внутри помещения (сталь, алюминий или дерево).
Компания PROCURAL модифицировала решение базовой фасадной системы PF152, расширив её возможности выполнения наружной облицовки на подсистеме, независимой от алюминиево-стеклянной системы. В результате стало возможным сочетание разных конструкционных материалов с иным внешним видом: снаружи — алюминий, а внутри — сталь, алюминий или дерево.
Какие характерные особенности новой системы PF152A?
- отличная герметичность, обеспеченная трёхступенчатой системой водоотведения;
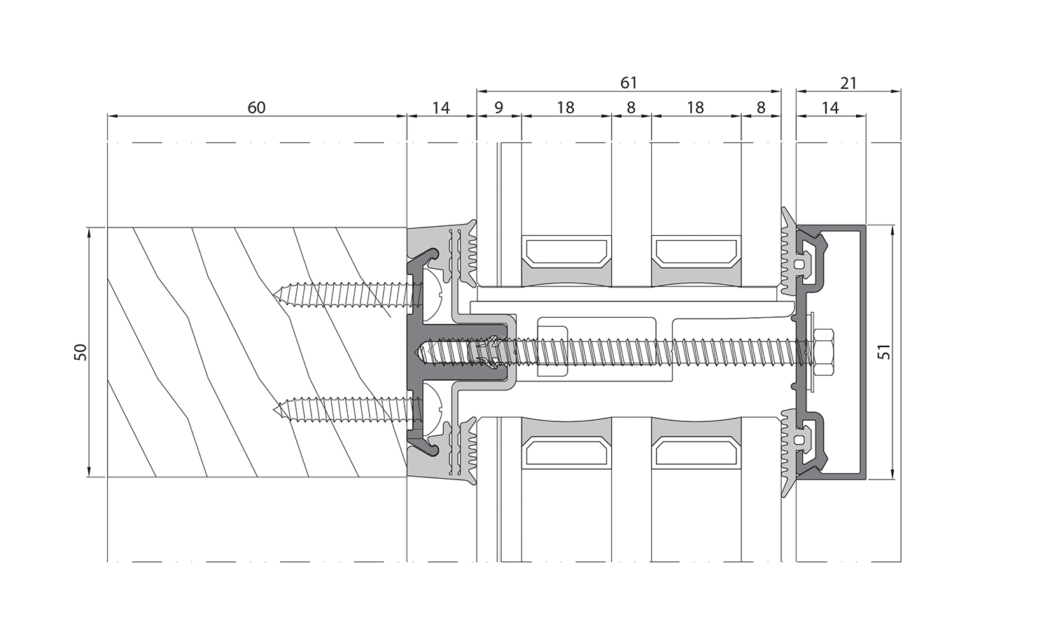
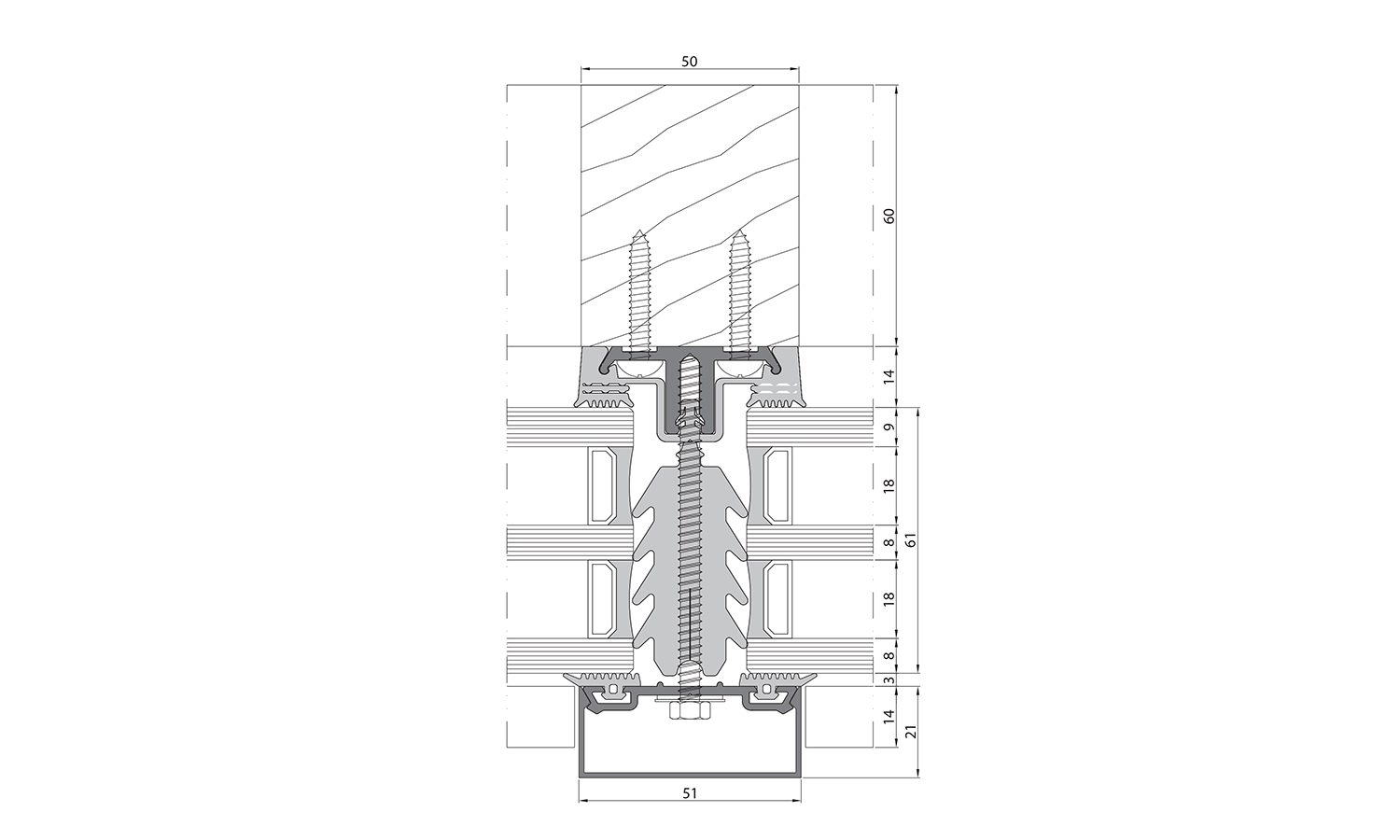
- возможность монтажа на стальной, алюминиевой или деревянной подсистеме (минимальная ширина профилей подсистемы — 50 мм);
- монтаж на стальной подсистеме значительно увеличивает максимальные габариты конструкции;
- высота фасадной стены ограничена 13 м;
- очень эстетичный вид, особенно в версии с деревянной подсистемой: изнутри видны тёплые акценты дерева, а снаружи — алюминиевые профили, окрашенные порошковым методом или анодированные, шириной 51 мм (в стандартной версии).
Технические параметры
Алюминиевые профили
Изготовлены из алюминиевого сплава EN AW-6060 PN-EN 573-3, состояние T66 по PN-EN 515 и соответствуют требованиям PN-EN 12020-1.
Уплотнители
Уплотнители из синтетического каучука EPDM по стандарту PN-EN 12365-1 и из TPE по DIN 16941R3.
Ширина стоек и ригелей
51 мм.
Заполнение
Одинарное стекло, стеклопакеты или непрозрачные панели. Толщина: для фасада 4–65 мм, для окон 24–69 мм.
Термоизоляция
Uf от 0,93 Вт/м²К, Ucw/Uw = 0,62 Вт/м²К (рассчитано для элемента размером L 1200 x H 2500 мм, Ug = 0,5 Вт/м²К, двухкамерное стекло).
Способы обработки поверхности
Порошковая окраска полиэстеровыми красками, соответствующими требованиям Qualicoat, с возможностью выбора цветов по палитре RAL; анодирование — натуральное и цветное, соответствующее стандарту Qualanod; лакирование «под дерево» — обработка поверхности отвечает высоким антикоррозийным требованиям.



